Prostran stan sa dve spavaće sobe Tivat

275.000 €
Prodaja
Tip nekretnine: Stan
Površina (kv.m.)
72
Spavaće sobe
2
Kupatila
2
Garaže
1

Sadržaji

  • Bežični internet
  • Garaža / Parking
  • Garden
  • Klima uređaj
  • Nameštaj
  • Ostava
  • Pogled na grad
  • Pogled na more
  • Pogled na planine

Opis

Prodaja prvoklasnog stana u Tivtu, naselje Mažina-2.

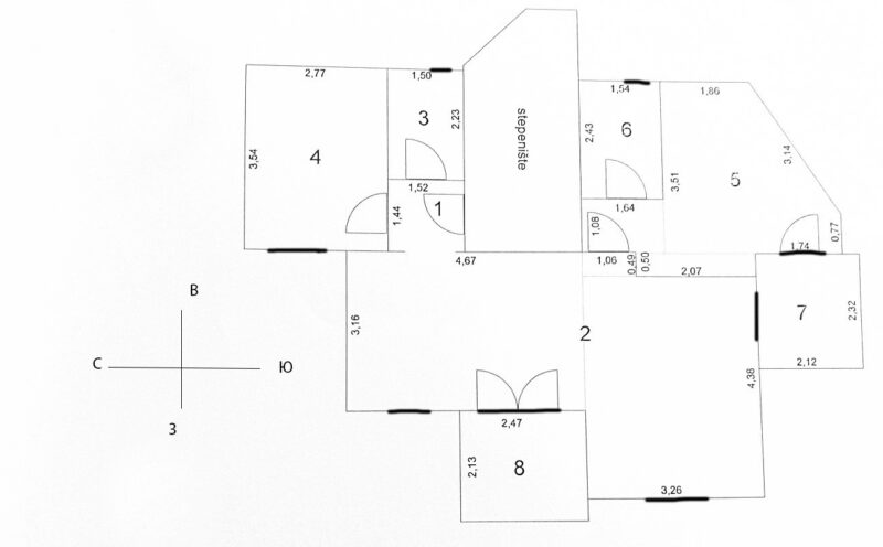
Stan u trospratnoj zgradi izgrađenoj 2022. godine. Površina stana je 72 kv. m. Stan zauzima ceo sprat.

Dva balkona, dve spavaće sobe, dva kupatila. Panoramski prozori od poda do plafona u svakoj sobi sa pogledom na Tivatski zaliv (rolete + komarnici na prozorima). U prizemlju se nalazi prostrana garaža za dva automobila (stan ima jedno mesto). Garaža ima posebnu ostavu od 7 kv. m. Pored kuće se nalazi parking za goste.

Split sistem – klima uređaj u svakoj sobi. Pogled na zaliv, marinu Porto Montenegro, botaničku baštu. Mirna slepa ulica. Kuća je okružena vekovnim drvećem (hrastovi, bagrem, magnolija, trešnja, masline). U blizini je šuma sa stazama do planine Vrmac.

Porto Montenegro je udaljen 10 minuta hoda. Na pešačkoj udaljenosti od lokalnih i međunarodnih škola, vrtića, klinike, pijace, supermarketa, kafića, restorana.

Struktura stana: dnevna soba (dva balkona, četiri prozora), dnevna soba kombinovana sa kuhinjom (svi uređaji su ugrađeni, instaliran filter za vodu sa reverznom osmozom), kupatilo 1 (mašina za pranje i sušenje veša sa toplotnom pumpom, električni grejač za peškire), kupatilo 2, spavaća soba 1 (izlaz na balkon), spavaća soba 2 – radna soba.

Nameštaj: u dnevnoj sobi – ugrađena kuhinja, u spavaćoj sobi – komoda, u radnoj sobi – garderober i komoda. Novi asfalt do kuće. Internet kabl – optički.

Bez plaćanja za menadžment kompaniju. Oko kuće se nalazi mladi voćnjak.

Kontaktirajte agenta

Igor Podgaiskii

Online consultant / Онлайн консультант






    🌟 Find your dream property in Montenegro! Click to start 🌟

    Hello! Let's find your dream home!

    Just a few questions, and we'll suggest the best options for you.